Назад
Апартамент 1 комната 37,30m2

Жилой комплекс “Nova Residence”

Nova Residence - это современный жилой комплекс для тех, кто ищет не просто жильё, а стильное и функциональное пространство, созданное с заботой о будущем. Светлые квартиры с продуманной планировкой и качественной отделкой обеспечивают комфортную и гармоничную жизнь. Комплекс расположен в тихом районе, но при этом имеет удобное сообщение с Кишинёвом, сочетая уединённость загородной жизни с преимуществами городского комфорта.

🏠 Ключевые преимущества:
✅ Просторные квартиры с умной планировкой – созданы для твоего ежедневного комфорта
✅ Премиальная отделка и современный архитектурный дизайн – качество заметно в каждой детали
✅ Автономное отопление, индивидуальный котёл в каждой квартире – контроль и энергоэффективность
✅ Тёплый пол в прихожей, санузле и на кухне – комфорт именно там, где это важно
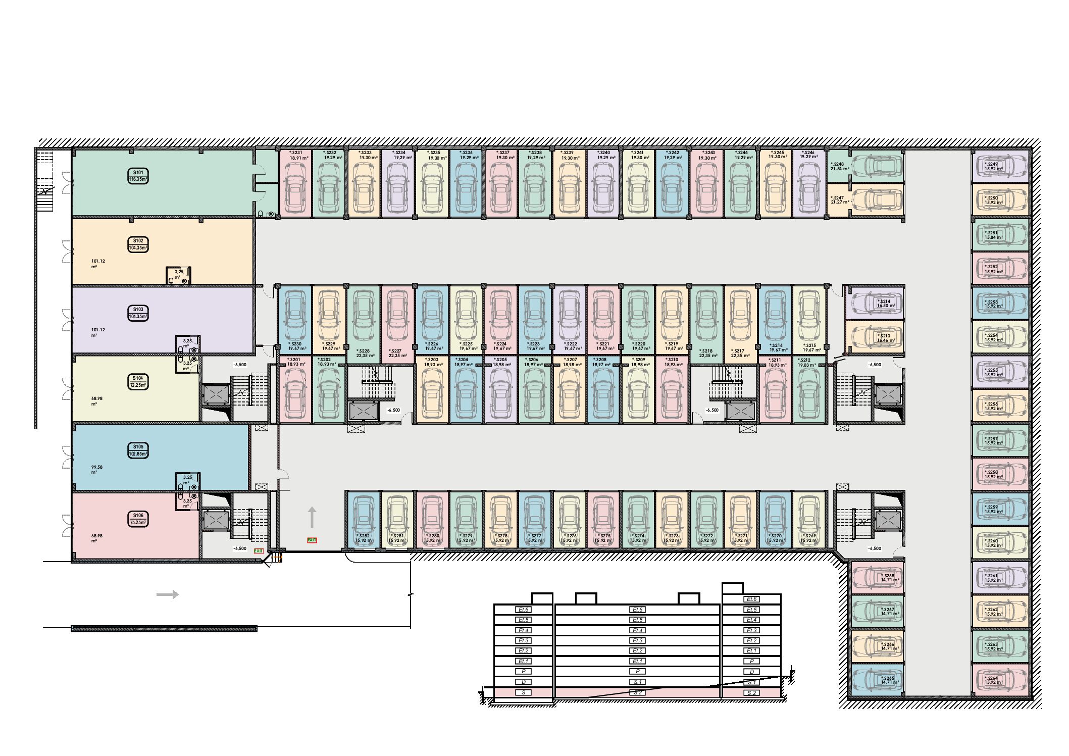
✅ Коммерческие помещения на первом этаже – быстрый доступ к необходимым услугам
✅ Подземные закрытые гаражи – безопасность и удобство для твоего автомобиля
✅ Детские площадки – дополнительное преимущество для молодых семей

Технические характеристики:
    — Несущая конструкция из железобетона, с внешними стенами из газобетона и внутренними из глиняного кирпича (согласно проекту исполнения);
    — Выполнение фасадных работ, утепление и наружная штукатурка стен (согласно проекту исполнения);
    — Установка автономной системы отопления (котёл в каждой квартире) с монтажом радиаторов и труб, включая тёплые полы в санузлах, кухне и прихожей;
    — Монтаж окон из ПВХ с тройным стеклопакетом, 5 камер (согласно проекту исполнения);
    — Установка входной двери в квартиру;
    — Монтаж электрических сетей;
    — Монтаж системы водоснабжения и канализации;
    — Установка системы газоснабжения;
    — Монтаж системы вентиляции;
    — Штукатурка внутренних стен сухой смесью;
    — Подготовка поверхностей для устройства полов (стяжка согласно проекту исполнения);
    — Установка лифтов;
    — Благоустройство, утепление и гидроизоляция крыши;
    — Отделка общих зон, включая лестницы и холлы;
    — Установка кронштейнов для кондиционеров на фасаде (согласно проекту исполнения) и монтаж дренажной системы;
    — Благоустройство прилегающей территории с установкой детской площадки.
Сдача в эксплуатацию: IV квартал 2027 года
Map Data
Map data ©2023
Map DataMap data ©2019
Чтобы узнать все детали о квартирах вы можете оставить заявку и мы вам перезвоним





Sunati pe Viber
Scrieti pe Messanger
Sunati la telefonul nostru
f